Loué

Lens (62300) LENS T1 parking

Réf : 23388
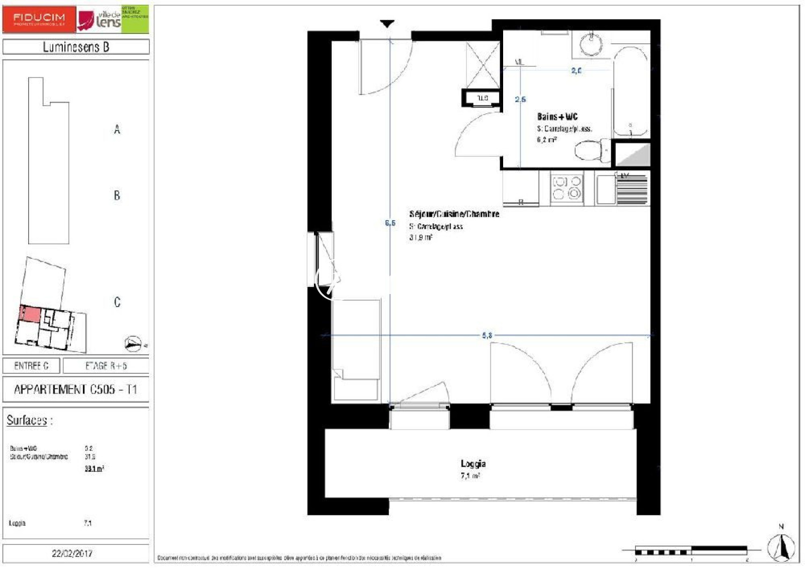
Dans la Résidence neuve LUMINESENS, vous est proposé un appartement (n°C505) de type 1 de 38.1m² au 5ème étage avec ascenseur. Pièce de vie de 32m² avec espace cuisine équipée (four, hotte, meuble haut et bas, évier inox et 2 plaques vitrocéramiques) donnant sur une loggia exposée SUD. Salle de bain avec baignoire, WC. Stationnement extérieur. Chauffage individuel. Eau chaude et froide collectives.

Annonce proposée par un agent commercial

TRAD_SIROCCO_Caracteristique Valeurs
Code postal 62300
Surface habitable (m²) 38,10 m²
Nombre de pièces 1
Meublé Non renseigné
Etage 5
Ascenseur 1
TRAD_SIROCCO_Caracteristique Valeurs
Nb de salle de bains 1
Cuisine Américaine
Type de cuisine Equipée
Mode de chauffage Electrique
Type de chauffage Autre
Format de chauffage AUTRE
Balcon OUI
Nombre de parking 1
Année de construction 2018
TRAD_SIROCCO_Caracteristique Valeurs
Dont état des lieux 70 €
Dépôt de garantie TTC 400 €
Charges locatives (provision donnant lieu à régularisation annuelle) 65 €
DPE GES
DPE ANCIENNE VERSION

* CC : Charges comprises

Nos outils

Imprimer
Ces biens peuvent aussi vous intéresser
Nous suivre sur