Lens (62300) LENS T1 Parking - 35233
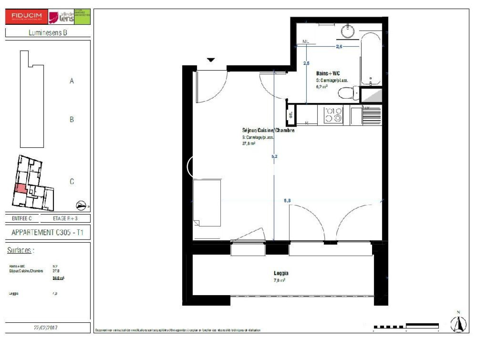
Dans la Résidence neuve LUMINESENS, vous est proposé un appartement (n°C305) de type 1 de 34m² sis au 3ème étage avec ascenseur. Pièce de vie de 27.8m² avec espace cuisine équipée (four, hotte, meuble haut et bas, évier inox et 2 plaques vitrocéramiques) donnant sur une loggia exposée SUD. Salle de bain avec baignoire, WC. Stationnement extérieur. Chauffage individuel. Eau chaude et froide collectives.
Annonce proposée par un agent commercial
Montant estimé des dépenses annuelles d'énergie pour un usage standard est compris entre 325 € et 439 € . Prix moyens des énergies indexés sur les années 2021, 2022 et 2023 (abonnements compris).
* CC : Charges comprises
Détails des diagnostics énergétiques
Montant estimé des dépenses annuelles d'énergie pour un usage standard est compris entre 325 € et 439 € . Prix moyens des énergies indexés sur les années 2021, 2022 et 2023 (abonnements compris).
