Loué

Lens (62300) LENS T1 balcon parking

Réf : 35227
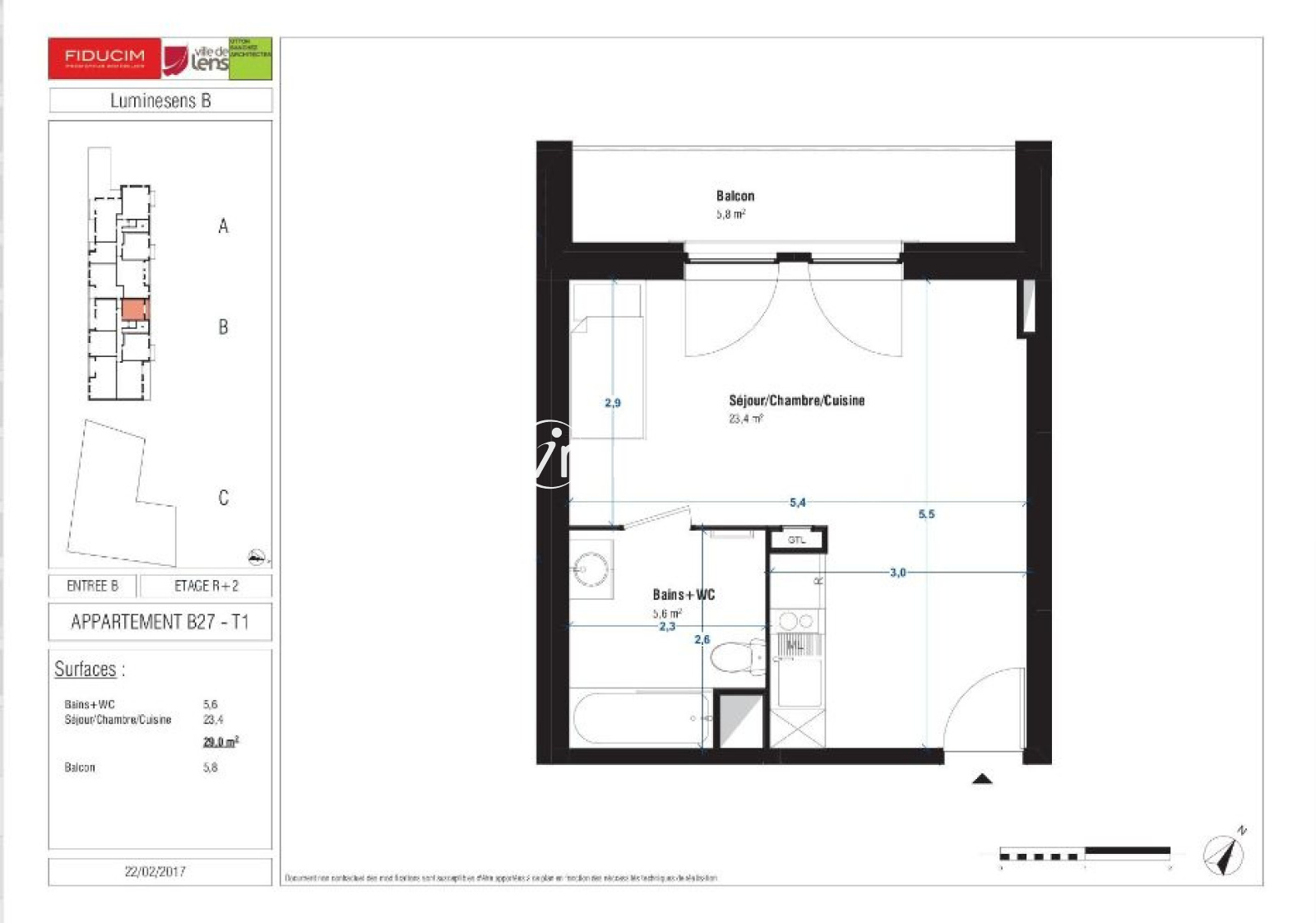
A LENS, dans la Résidence récente LUMINESENS PHASE 2, vous est proposé un appartement n°B27 de type 1 de 29 m². Situé au 2ème étage du bâtiment B1 avec ascenseur, il comprend une pièce de vie de 23.40 m² avec espace cuisine équipé (four, hotte, meuble haut et bas, évier et plaque vitrocéramique) donnant sur un balcon de 5.80 m² et une salle de bains avec WC. Stationnement extérieur n°46.

Annonce proposée par un agent commercial

TRAD_SIROCCO_Caracteristique Valeurs
Code postal 62300
Surface habitable (m²) 38,10 m²
Nombre de pièces 1
Meublé Non renseigné
Etage 2
Ascenseur 2
TRAD_SIROCCO_Caracteristique Valeurs
Nb de salle de bains 1
Type de cuisine Equipée
Mode de chauffage Gaz
Type de chauffage Autre
Format de chauffage AUTRE
Balcon OUI
Nombre de parking 1
Année de construction 2018
TRAD_SIROCCO_Caracteristique Valeurs
Dont état des lieux 87 €
Dépôt de garantie TTC 353 €
Charges locatives (provision donnant lieu à régularisation annuelle) 61 €
DPE GES
DPE ANCIENNE VERSION

* CC : Charges comprises

Nos outils

Imprimer
Ces biens peuvent aussi vous intéresser
Nous suivre sur