Loué

Lens (62300) LENS T1 terrasse parking

Réf : 58497
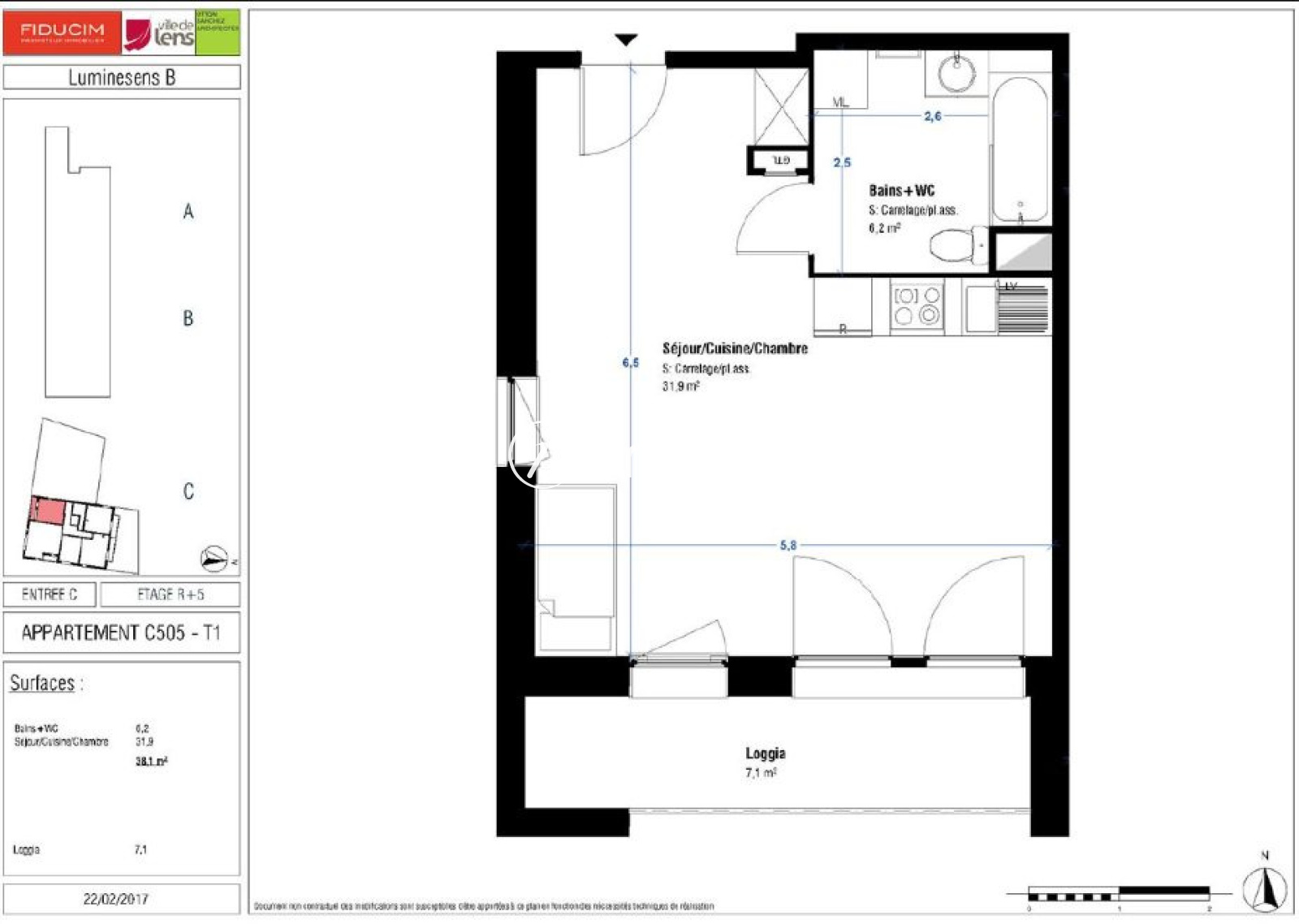
Lens - Dans la Résidence LUMINESENS, vous est proposé un appartement (n°13) de type 1 de 30.10 m². Il comprend une pièce de vie avec espace cuisine équipée (four, hotte, meuble haut et bas, évier inox et 2 plaques vitrocéramiques) donnant sur une terrasse de 5,2 m² et une salle de bains avec WC. Stationnement intérieur n°24.

Annonce proposée par un agent commercial

TRAD_SIROCCO_Caracteristique Valeurs
Code postal 62300
Surface habitable (m²) 30,10 m²
Nombre de pièces 1
Meublé Non renseigné
Ascenseur 2
TRAD_SIROCCO_Caracteristique Valeurs
Nb de salle de bains 1
Type de cuisine Equipée
Mode de chauffage Gaz
Type de chauffage Autre
Format de chauffage AUTRE
Terrasse OUI
TRAD_SIROCCO_Caracteristique Valeurs
Dont état des lieux 114 €
Dépôt de garantie TTC 370 €
Charges locatives (provision donnant lieu à régularisation annuelle) 55 €
DPE GES
DPE ANCIENNE VERSION

* CC : Charges comprises

Nos outils

Imprimer
Ces biens peuvent aussi vous intéresser
Nous suivre sur