Lens (62300) F1 balcon parking

Réf : 35247
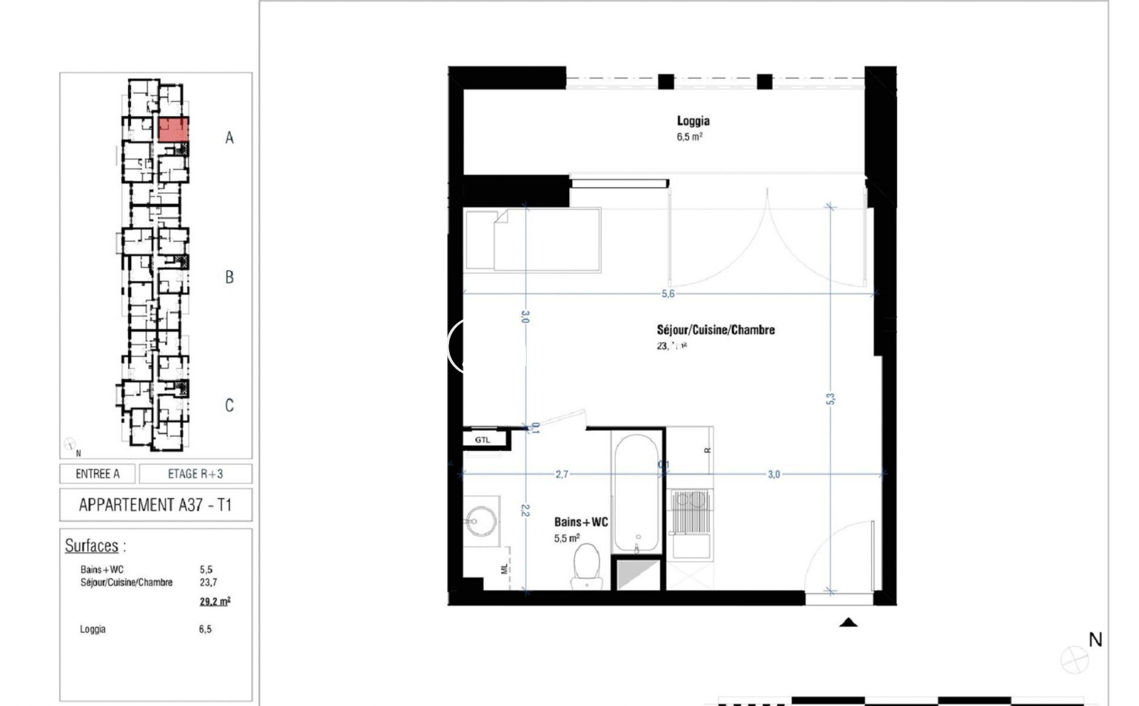
LENS - Dans la Résidence LUMINESENS, nous vous proposons un appartement n°A37 de 29.2m². Situé au 3ème étage du bâtiment B avec ascenseur, il comprend : une pièce de vie de 23.7 m² avec espace cuisine, donnant sur une loggia de 6.5 m², et une salle de bains avec baignoire et WC. Au rez-de-chaussée, une place de stationnement n°23 est à votre disposition. Chauffage individuel électrique, et eau froide individuelle dont l'abonnement est à souscrire auprès de VEOLIA. Eau chaude collective. Entretien parties communes, ascenseur et espaces verts communs, compris dans les provisions sur charges mensuelles et donnant lieu à une régularisation annuelle. Les honoraires de location sont facturés directement au locataire par le partenaire pour 233€ TTC. Quant aux honoraires de rédaction des états des lieux, ils sont facturés par AFEDIM Gestion pour 87€ TTC, après réalisation, lors de l'entrée dans les lieux.

Annonce proposée par un agent commercial

TRAD_SIROCCO_Caracteristique Valeurs
Code postal 62300
Surface habitable (m²) 29,20 m²
Nombre de pièces 1
Meublé Non renseigné
Etage 3
Ascenseur 1
TRAD_SIROCCO_Caracteristique Valeurs
Nb de salle de bains 1
Cuisine Aménagée
Type de cuisine Equipée
Mode de chauffage Electrique
Type de chauffage Autre
Format de chauffage AUTRE
Balcon OUI
Nombre de parking 1
Année de construction 2018
TRAD_SIROCCO_Caracteristique Valeurs
Dont état des lieux 87 €
Dépôt de garantie TTC 341 €
Charges locatives (provision donnant lieu à régularisation annuelle) 58 €
DPE GES
DPE ANCIENNE VERSION

* CC : Charges comprises

Nos outils

Imprimer
Ces biens peuvent aussi vous intéresser
Nous suivre sur