Lens (62300) T2 Lens

Réf : 51528
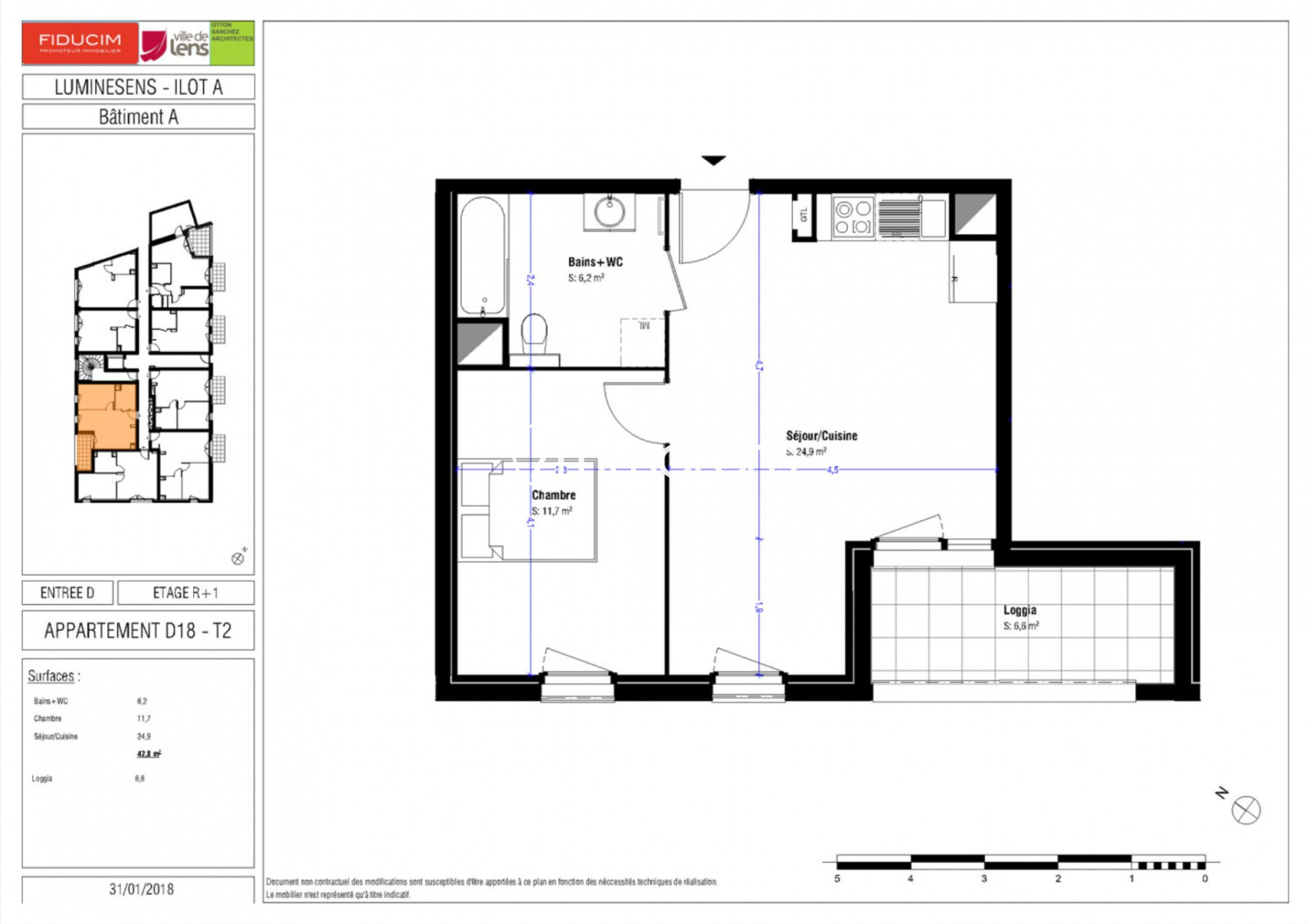
Lens, dans la résidence Luminesens, appartement T2 de 42,8 m² situé au 1er étage avec ascenseur. Il est composé d'un séjour/cuisine de 21,80 m², d'une chambre de 11,7 m² et d'une salle de bain avec WC. Emplacement de stationnement. Chauffage individuel électrique. Eau chaude, eau froide, entretien parties communes et espaces verts communs, compris dans les provisions sur charges mensuelles et donnant lieu à une régularisation annuelle.

Annonce proposée par un agent commercial

TRAD_SIROCCO_Caracteristique Valeurs
Code postal 62300
Surface habitable (m²) 42,80 m²
Nombre de chambre(s) 1
Nombre de pièces 2
Meublé Non renseigné
Etage 1
Ascenseur 1
TRAD_SIROCCO_Caracteristique Valeurs
Nb de salle de bains 1
Cuisine Américaine
Type de cuisine Equipée
Mode de chauffage Electrique
Type de chauffage Autre
Format de chauffage AUTRE
Balcon OUI
Année de construction 2021
TRAD_SIROCCO_Caracteristique Valeurs
Dont état des lieux 150 €
Dépôt de garantie TTC 471 €
Charges locatives (provision donnant lieu à régularisation annuelle) 84 €
DPE GES
DPE ANCIENNE VERSION

* CC : Charges comprises

Nos outils

Imprimer
Ces biens peuvent aussi vous intéresser
Nous suivre sur