Loué

Lens (62300)

Réf : 39356
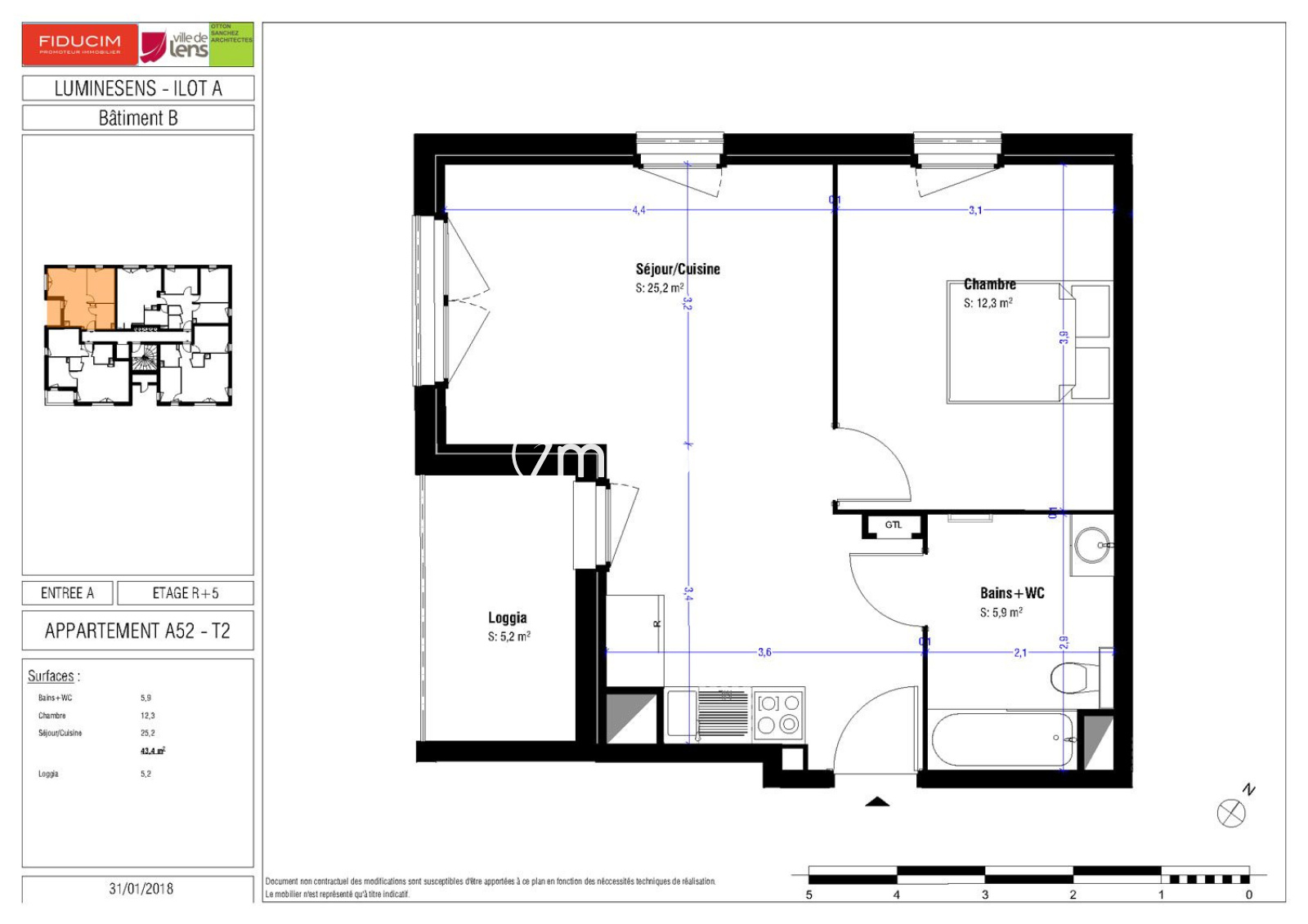
A LENS, dans la résidence neuve LUMINESENS , un T2 n°3BA52 d'une superficie de 43,40 m² au 5ème étage avec ascenseur. Il se compose d'un séjour-cuisine de 25,20 m² donnant sur une loggia de 5,20 m², d'une chambre de 12,30 m² et d'une salle de bain avec WC. Chauffage individuel électrique. Disponible le 15 mai 2024

Annonce proposée par un agent commercial

TRAD_SIROCCO_Caracteristique Valeurs
Code postal 62300
Surface habitable (m²) 43,40 m²
Nombre de chambre(s) 1
Nombre de pièces 2
Meublé Non renseigné
Etage 5
Ascenseur 1
TRAD_SIROCCO_Caracteristique Valeurs
Nb de salle de bains 1
Cuisine Aménagée
Type de cuisine Equipée
Mode de chauffage Electrique
Type de chauffage Autre
Format de chauffage AUTRE
Balcon OUI
Année de construction 2020
TRAD_SIROCCO_Caracteristique Valeurs
Dont état des lieux 130 €
Dépôt de garantie TTC 478 €
Charges locatives (provision donnant lieu à régularisation annuelle) 85 €
DPE GES
DPE ANCIENNE VERSION

* CC : Charges comprises

Nos outils

Imprimer
Ces biens peuvent aussi vous intéresser
Nous suivre sur