Lens (62300) LENS T2
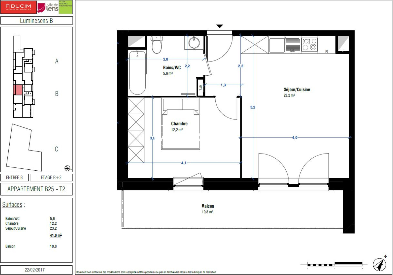
A LENS, à proximité des transports, de la faculté des sciences ainsi que du stade Jean Moulin, dans la résidence neuve " LUMINESENS" nous vous proposons un appartement de type T2 n° C302 de 40,20 m². Situé au 4ème étage avec ascenseur. Pièce de vie de 23m² avec espace cuisine équipée (plaques, four, hotte, plan de travail) donnant sur un balcon de 6m². une chambre de 11.6m². Salle d'eau avec douche, WC. Au sous-sol un parking n°4. Eau chaude et froide collectives, entretien parties communes, entretien ascenseur et espaces verts communs, compris dans les provisions sur charges mensuelles et donnant lieu à une régularisation annuelle. Les honoraires de location TTC (à la charge du locataire) incluent le montant de rédaction des états des lieux facturé pour 120,00 euros TTC, après réalisation lors de l'entrée dans les lieux
Annonce proposée par un agent commercial
Montant estimé des dépenses annuelles d'énergie pour un usage standard est compris entre 390 € et 580 € . Prix moyens des énergies indexés sur les années 2021, 2022 et 2023 (abonnements compris).
* CC : Charges comprises
Détails des diagnostics énergétiques
Montant estimé des dépenses annuelles d'énergie pour un usage standard est compris entre 390 € et 580 € . Prix moyens des énergies indexés sur les années 2021, 2022 et 2023 (abonnements compris).
