Loué

Lens (62300) LENS F3 parking

Réf : 25007
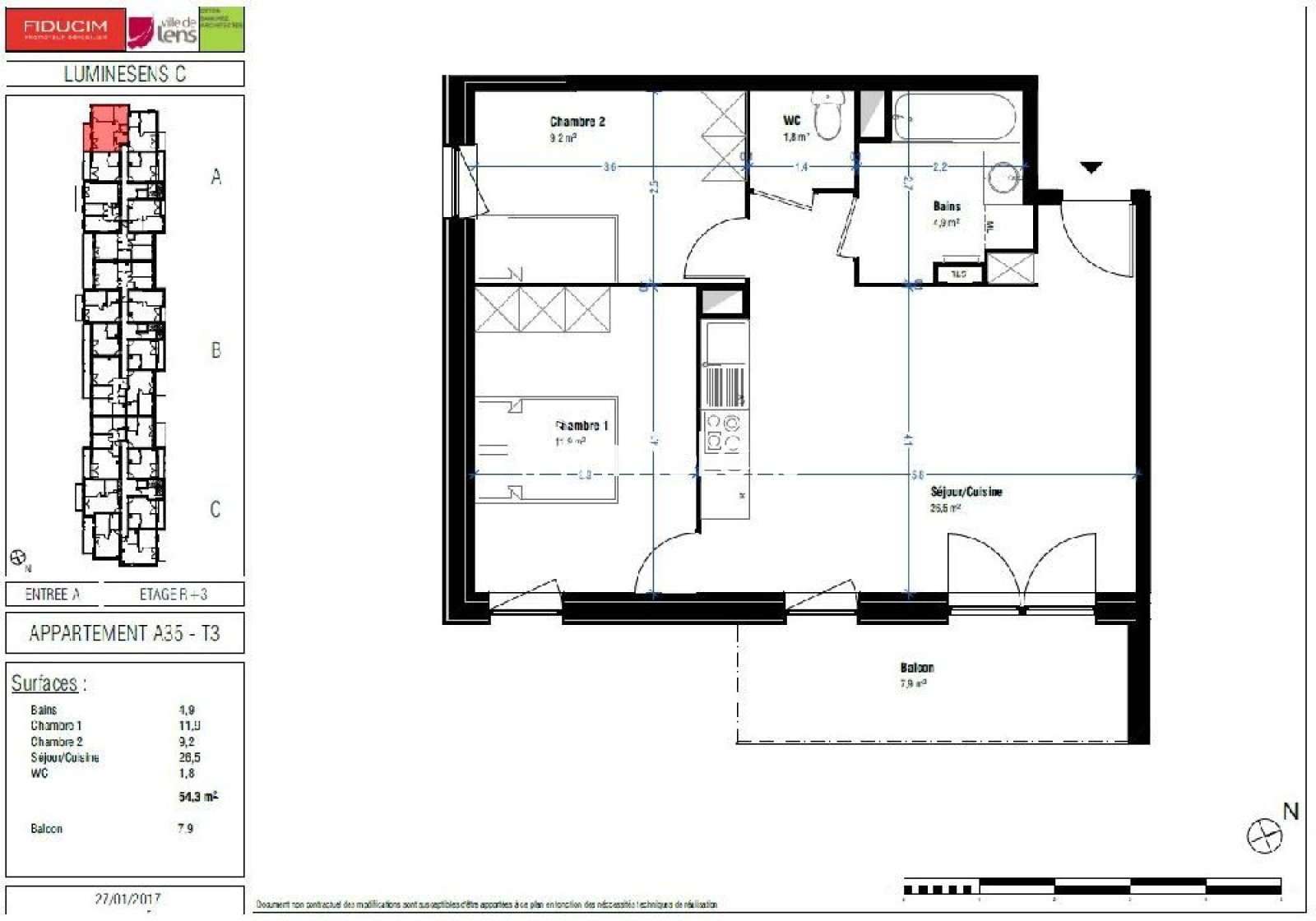
Dans la Résidence neuve LUMINESENS, vous est proposé un appartement (n°A35) de type 3 de 54.30m² sis au 3ème étage avec ascenseur. Pièce de vie de 26m² avec espace cuisine équipée (four, hotte, meuble haut et bas, évier inox et 4 plaques vitrocéramiques) donnant sur un balcon de 8m² exposé SUD. Deux chambres de 9 et 12m². Salle de bain avec baignoire. WC séparé. Stationnement sous-sol. Chauffage individuel. . Logement disponible à partir du 10/01/2020

Annonce proposée par un agent commercial

TRAD_SIROCCO_Caracteristique Valeurs
Code postal 62300
Surface habitable (m²) 54,30 m²
Nombre de chambre(s) 2
Nombre de pièces 3
Meublé Non renseigné
Etage 3
Ascenseur 1
TRAD_SIROCCO_Caracteristique Valeurs
Nb de salle de bains 1
Cuisine Américaine
Type de cuisine Equipée
Mode de chauffage Electrique
Type de chauffage Autre
Format de chauffage AUTRE
Balcon OUI
Nombre de parking 1
Année de construction 2018
TRAD_SIROCCO_Caracteristique Valeurs
Dont état des lieux 90 €
Dépôt de garantie TTC 525 €
Charges locatives (provision donnant lieu à régularisation annuelle) 70 €
DPE GES
DPE ANCIENNE VERSION

* CC : Charges comprises

Nos outils

Imprimer
Ces biens peuvent aussi vous intéresser
Nous suivre sur