Lens (62300) LENS F3 Rdc parking

Réf : 35236
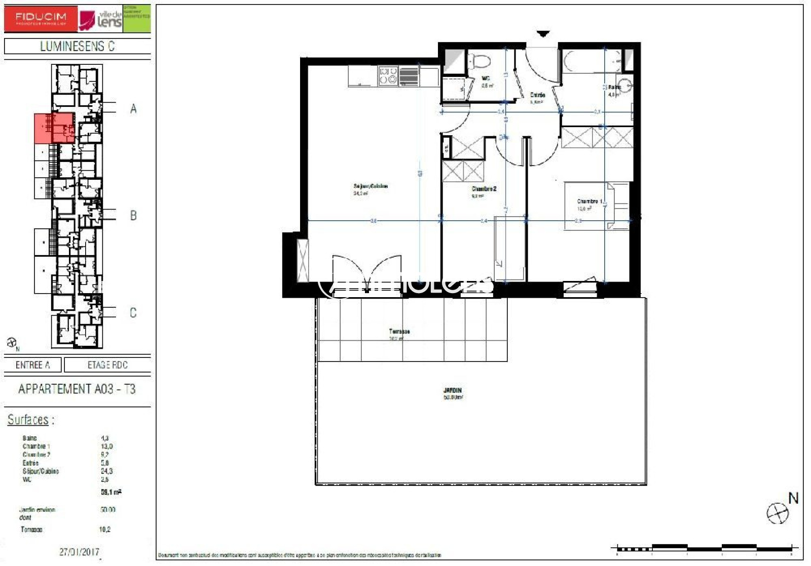
RENSEIGNEMENTS UNIQUEMENT PAR MAIL Dans la Résidence neuve LUMINESENS, vous est proposé un appartement (n°A03) de type 3 de 59.1m² sis au RDC. Pièce de vie de 26m² avec espace cuisine équipée (four, hotte, meuble haut et bas, évier inox et 4 plaques vitrocéramiques) donnant sur une terrasse de 10m² et un jardin de 50m², le tout exposé SUD-EST. Entrée avec placard desservant deux chambres, un WC séparé et une salle de bain avec baignoire. Stationnement sous-sol. Chauffage individuel. Justifier de 2100€ de revenus nets - cdi RENSEIGNEMENTS UNIQUEMENT PAR MAIL

Annonce proposée par un agent commercial

TRAD_SIROCCO_Caracteristique Valeurs
Code postal 62300
Surface habitable (m²) 59,10 m²
Nombre de chambre(s) 2
Nombre de pièces 3
Meublé Non renseigné
Ascenseur 1
TRAD_SIROCCO_Caracteristique Valeurs
Nb de salle de bains 1
Cuisine Américaine
Type de cuisine Equipée
Mode de chauffage Electrique
Type de chauffage Autre
Format de chauffage AUTRE
Terrasse OUI
Nombre de parking 1
Année de construction 2018
TRAD_SIROCCO_Caracteristique Valeurs
Dont état des lieux 177 €
Dépôt de garantie TTC 624 €
Charges locatives (provision donnant lieu à régularisation annuelle) 72 €
DPE GES
DPE ANCIENNE VERSION

* CC : Charges comprises

Nos outils

Imprimer
Ces biens peuvent aussi vous intéresser
Nous suivre sur