Lens (62300)
Réf : VI198
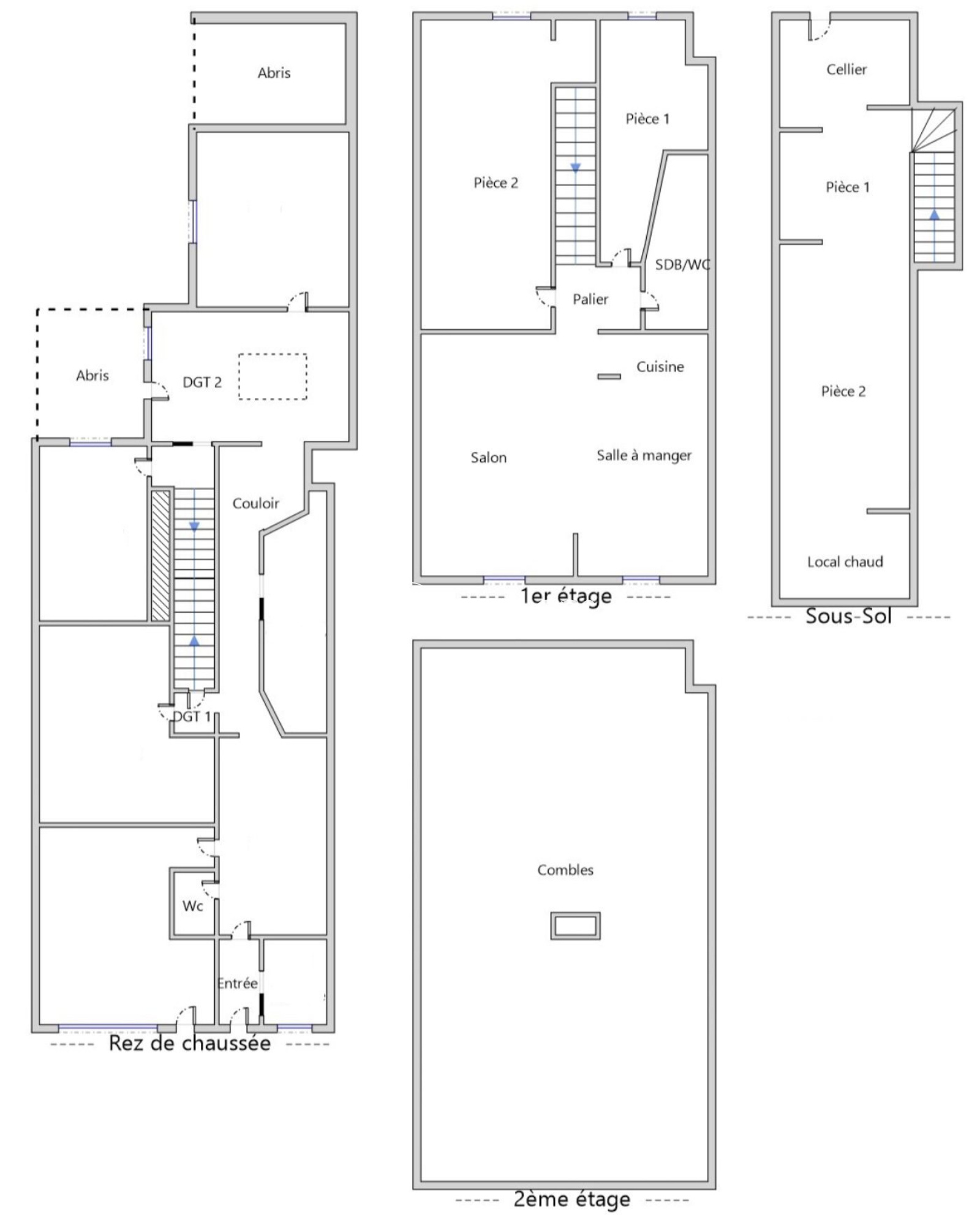
LENS centre ville, à deux pas de l'hyper centre, Il se compose d'un rdc (actuellement composés de bureaux) et d'un appartement T3 de 57m2 (accès à créer facilement, loyer potentiel de 650€/mois). Le rdc, d'une surface de 100m2, se compose de 5 bureaux (de 8 à 12m2), d'une salle d'attente, de deux accueils et d'une cave entièrement aménagée (28,5m2) avec fenêtres et accès jardin (45m2). Vitrine existante. POSSIBILITE TRANSFORMATION EN HABITATION Un point d'eau dans chaque bureau, possibilité de créer plusieurs chambres étudiantes, collocation...
Annonce proposée par un agent commercial
TRAD_SIROCCO_Caracteristique
Valeurs
Code postal
62300
surface terrain
143 m²
TRAD_SIROCCO_Caracteristique
Valeurs
Mode de chauffage
Gaz
Type de chauffage
Autre
Format de chauffage
AUTRE
Cave
OUI
TRAD_SIROCCO_Caracteristique
Valeurs
Taxe foncière annuelle
1 700 €
Montant estimé des dépenses annuelles d'énergie de ce logement pour un usage standard est compris entre 3 000 € et 2 130 € . 2000 étant l'année de référence des prix de l'énergie utilisés pour établir cette estimation.
Détails des diagnostics énergétiques
Montant estimé des dépenses annuelles d'énergie de ce logement pour un usage standard est compris entre 3 000 € et 2 130 € . 2000 étant l'année de référence des prix de l'énergie utilisés pour établir cette estimation.
