Lens (62300) LENS hyper centre - véritable loft, 220m2 rénové en 2013
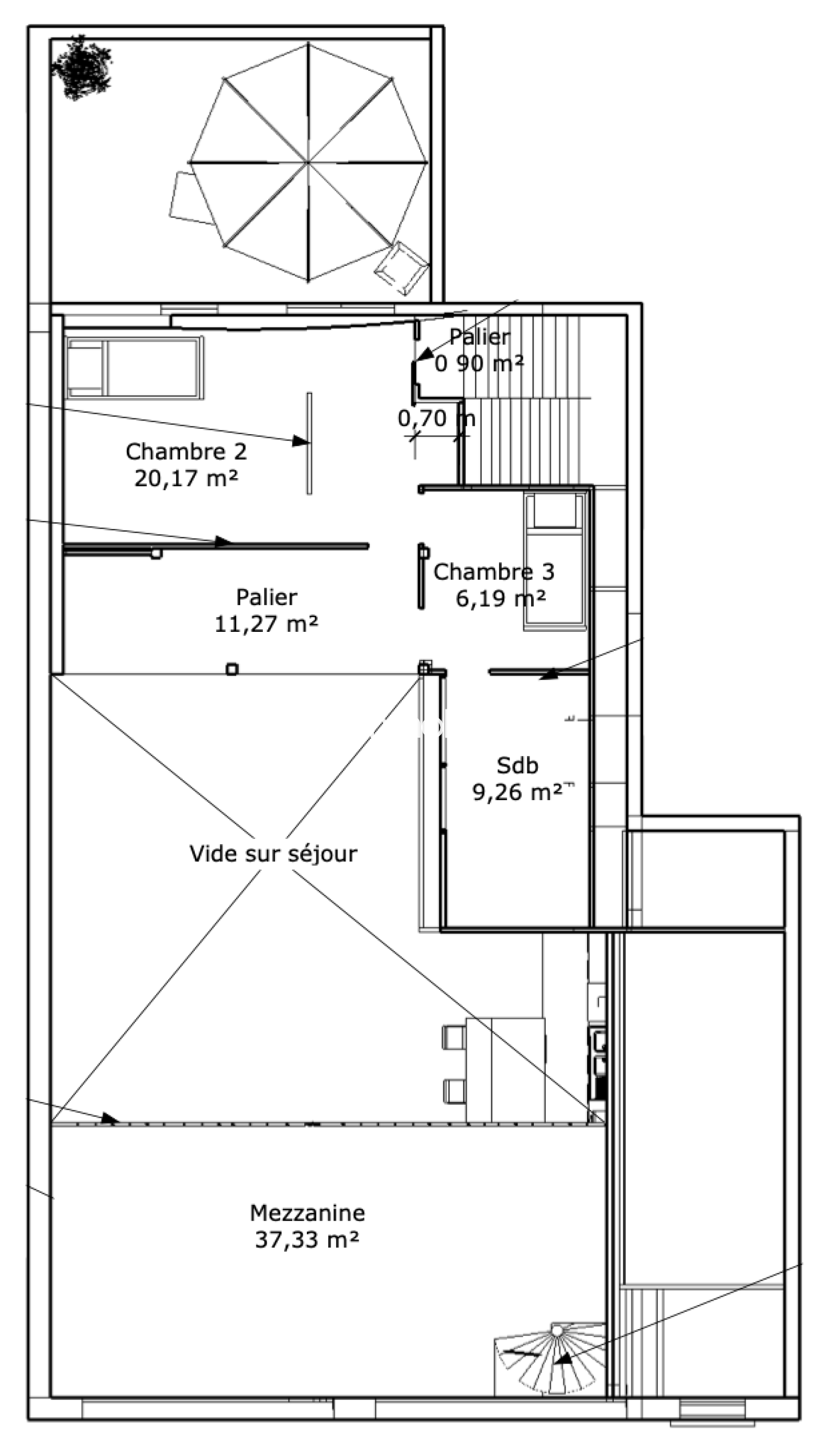
LENS hyper centre ville, véritable oft entièrement rénové en 2013. Au rdc, grand séjour cathédrale de 58m2, cuisine aménagée et équipée, arrière cuisine, buanderie, wc, sdb (baignoire et douche), une chambre avec dressing et un patio. Aux étages (2 accès, 2 mezzanines) 3 chambres et une salle d'eau. Cheminée feu de bois - DPE en C
D'autres photos et informations sur notre site.
Possibilité d'y créer un restaurant, bureaux, local d'activités...
Annonce proposée par un agent commercial
Montant estimé des dépenses annuelles d'énergie pour un usage standard est compris entre 2 340 € et 3 220 € . Prix moyens des énergies indexés sur les années 2021, 2022 et 2023 (abonnements compris).
Les informations recueillies sur ce formulaire sont enregistrées dans un fichier informatisé par La Boite Immo agissant comme Sous-traitant du traitement pour la gestion de la clientèle/prospects de l'Agence / du Réseau qui reste Responsable du Traitement de vos Données personnelles.
La base légale du traitement repose sur l'intérêt légitime de l'Agence / du Réseau.
Elles sont conservées jusqu'à demande de suppression et sont destinées à l'Agence / au Réseau.
Conformément à la loi « informatique et libertés », vous disposez des droits d’accès, de rectification, d’effacement, d’opposition, de limitation et de portabilité de vos données. Vous pouvez retirer votre consentement à tout moment en contactant directement l’Agence / Le Réseau.
Consultez le site https://cnil.fr/fr pour plus d’informations sur vos droits.
Si vous estimez, après avoir contacté l'Agence / le Réseau, que vos droits « Informatique et Libertés » ne sont pas respectés, vous pouvez adresser une réclamation à la CNIL.
Nous vous informons de l’existence de la liste d'opposition au démarchage téléphonique « Bloctel », sur laquelle vous pouvez vous inscrire ici : https://www.bloctel.gouv.fr
Dans le cadre de la protection des Données personnelles, nous vous invitons à ne pas inscrire de Données sensibles dans le champ de saisie libre.
Ce site est protégé par reCAPTCHA, les Politiques de Confidentialité et les Conditions d'Utilisation de Google s'appliquent.
Détails des diagnostics énergétiques
Montant estimé des dépenses annuelles d'énergie pour un usage standard est compris entre 2 340 € et 3 220 € . Prix moyens des énergies indexés sur les années 2021, 2022 et 2023 (abonnements compris).
LENS CENTRE VILLE TRIPLEX T4/T5
