Montigny-en-Gohelle (62640) T3 rés. securisée, terrasse, parking
Réf : VA2524
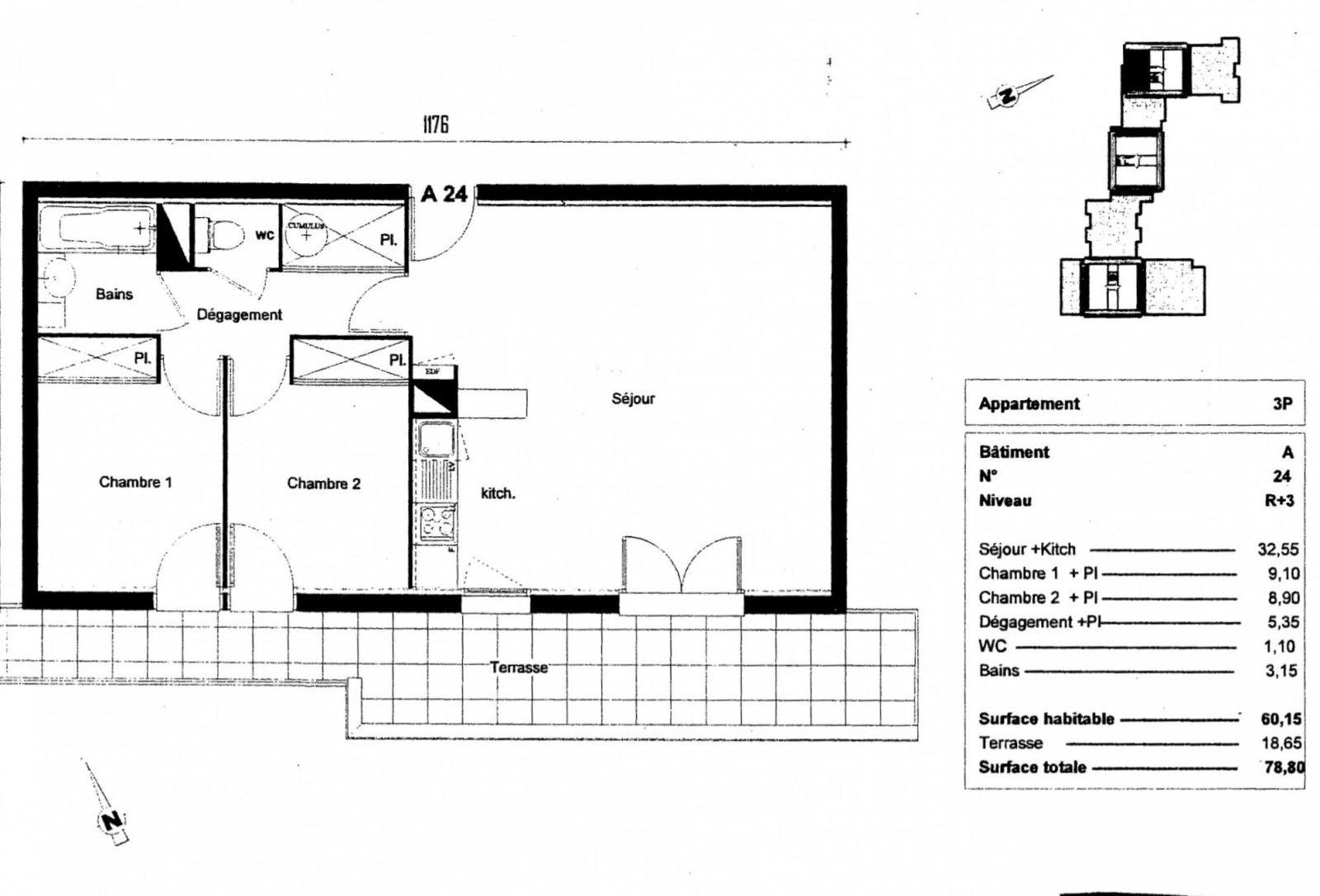
Montigny en Gohelle, appartement de type 3, 3eme étage sans ascenseur dans une résidence sécurisée. D'une surface de 60m2 il se compose d'un hall d'entrée, cuisine ouverte sur le séjour, sdb, wc, 2 chambres. Terrasse de 18,65 m2 + place de parking privée
Annonce proposée par un agent commercial
TRAD_SIROCCO_Caracteristique
Valeurs
Code postal
62640
Surface habitable (m²)
60,15 m²
Nombre de chambre(s)
2
Nombre de pièces
3
Etage
3
Ascenseur
2
TRAD_SIROCCO_Caracteristique
Valeurs
Nb de salle de bains
1
Cuisine
Américaine
Terrasse
OUI
TRAD_SIROCCO_Caracteristique
Valeurs
Charges
99 €
Taxe foncière annuelle
790 €
DPE ANCIENNE VERSION
Détails des diagnostics énergétiques
DPE ANCIENNE VERSION
