Salomé (59496) Maison neuve 3 chambres jardin garage

Réf : 47467
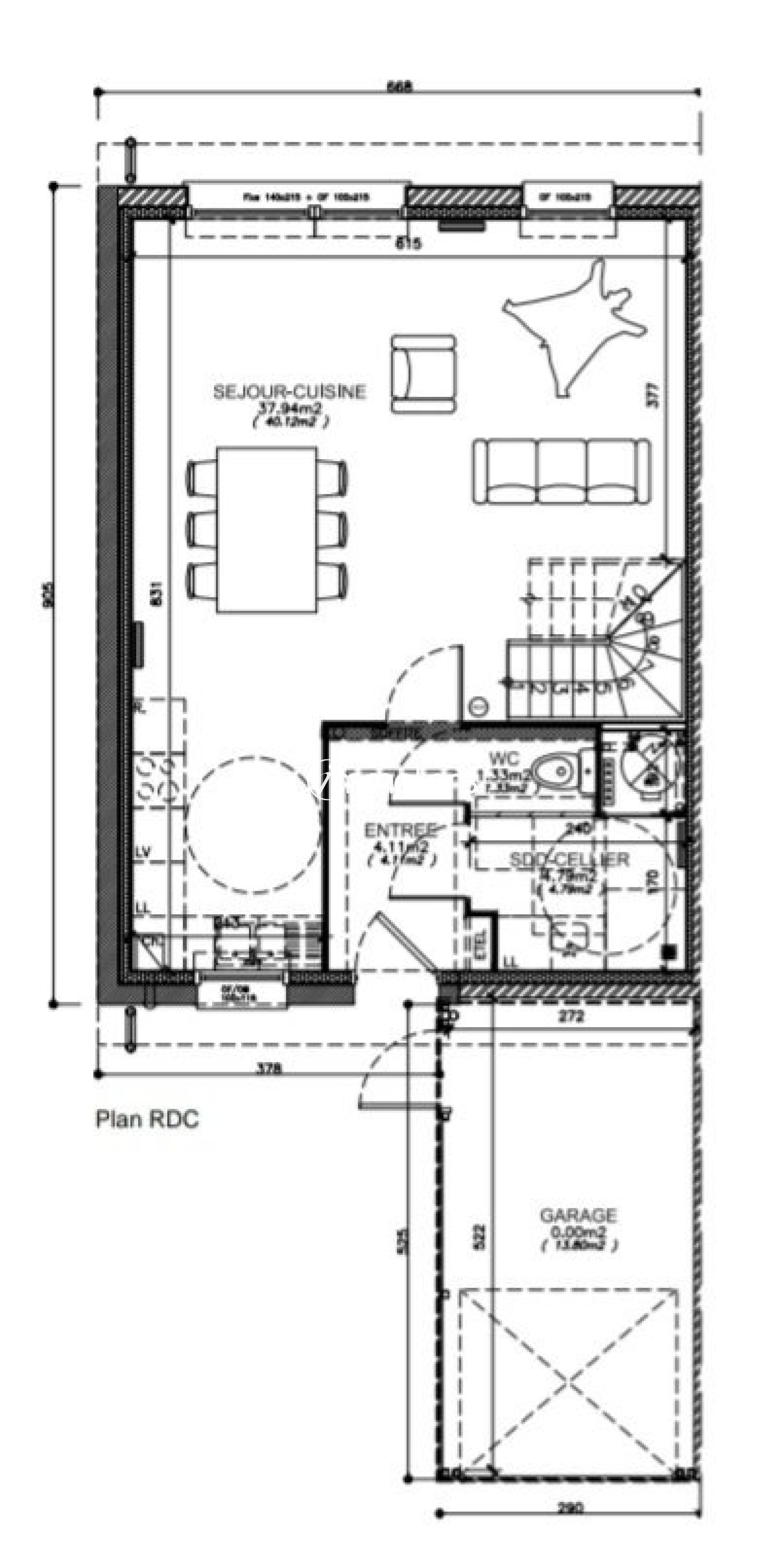
À Salomé, dans la résidence LE DOMAINE DES TROIS MERLETTES, maison T4 de 80,84 m². Elle est composée d'une entrée, d'un cellier, d'un dégagement, d'un séjour-cuisine de 37,94 m², d'une salle de bain, de WC et de trois chambres de 9,01 m², de 9,23 m² et de 9,04 m², d'un garage de 14,75 m². Chauffage et eau chaude individuel. Eau froide individuelle. Disponibilité prévisionnelle au 31/12/2020. MAISON SOUS DISPOSITIF PINEL Sous condition de ressources, revenus salariés nets minimum de 24000€/an et maximum voir tableau ci-dessous : Composition du foyer fiscal Plafonds de ressources Personne seule 28 049 € Couple 37 456 € Pers. seule ou couple ayant 1 pers. à charge 45 044 € Pers. seule ou couple ayant 2 pers. à charge 54 379 € Pers. seule ou couple ayant 3 pers. à charge 63 970 € Pers. seule ou couple ayant 4 pers. à charge 72 093 € (cdi, cdd, retraités, intérim - voir conditions en agence)

Annonce proposée par un agent commercial

TRAD_SIROCCO_Caracteristique Valeurs
Code postal 59496
Surface habitable (m²) 80,84 m²
Nombre de chambre(s) 3
Nombre de pièces 4
Meublé Non renseigné
Nombre de niveaux 2
TRAD_SIROCCO_Caracteristique Valeurs
Nb de salle de bains 1
Cuisine Américaine
Mode de chauffage Gaz
Type de chauffage Autre
Format de chauffage AUTRE
Année de construction 2020
TRAD_SIROCCO_Caracteristique Valeurs
Dont état des lieux 242 €
Dépôt de garantie TTC 664 €
DPE GES
DPE ANCIENNE VERSION

* CC : Charges comprises

Nos outils

Imprimer
Ces biens peuvent aussi vous intéresser
Loué
Hénin-Beaumont (62110)

Plain pied individuel 3 ch jardin garage

Loué
Loison-sous-Lens (62218)

EN ATTENTE SIGNATURE BAIL

Nous suivre sur