Loué

Hénin-Beaumont (62110)

Réf : 0034333
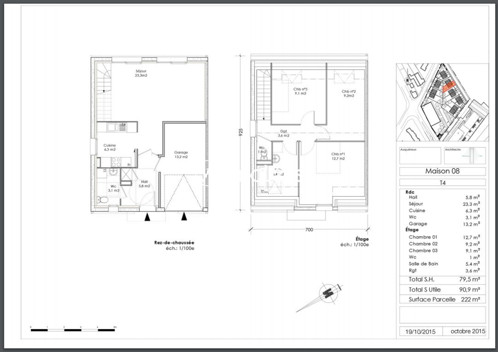
A HENIN BEAUMONT, dans la résidence récente Le HAMEAU DES POMMIERS, nous vous proposons une maison T4, comprenant : un hall d'entrée desservant WC et accès garage, un dégagement avec placard, une cuisine aménagée, un séjour de 23 m², jardin (parcelle 222 m²). A l'étage, un dégagement ouvrant sur 3 chambres, 1 salle de bains et 1 WC. Eau, électricité et gaz individuels, l'entretien des espaces individuel

Annonce proposée par un agent commercial

TRAD_SIROCCO_Caracteristique Valeurs
Code postal 62110
Surface habitable (m²) 79,50 m²
surface terrain 222 m²
Nombre de chambre(s) 3
Nombre de pièces 4
Meublé Non renseigné
TRAD_SIROCCO_Caracteristique Valeurs
Nb de salle de bains 1
Cuisine Aménagée
Type de cuisine Equipée
Mode de chauffage Gaz
Type de chauffage Autre
Format de chauffage AUTRE
Nombre de parking 1
Année de construction 2017
TRAD_SIROCCO_Caracteristique Valeurs
Dont état des lieux 267 €
Dépôt de garantie TTC 726 €
Charges locatives (provision donnant lieu à régularisation annuelle) 2 €
DPE GES
DPE ANCIENNE VERSION

* CC : Charges comprises

Nos outils

Imprimer
Ces biens peuvent aussi vous intéresser
Loué
Loison-sous-Lens (62218)

EN ATTENTE SIGNATURE BAIL

Loué
Salomé (59496)

Maison neuve 3 chambres jardin garage

Nous suivre sur