La Bassée (59480) LA BASSEE maison neuve

Réf : LM374
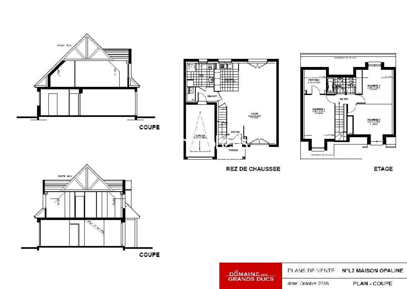
LA BASSEE, à proximité des villes de Béthune, Lens et Lille et de tous les services (transports, écoles, commerces..), c'est ici que nous vous proposons une maison individuelle neuve T5 (n°M028) d'une superficie de 94,15 m² au sein de la résidence LE DOMAINE DES GRANDS DUCS. Au rdc, elle se compose d'un salon de 21,14 m², d'une salle à manger, d'une cuisine et d'une salle d'eau avec WC. A l'étage, une salle de bain, des WC et trois chambres de 12,66 m² avec dressing, de 11,98 m² et de 8,95 m². La maison comprend également un garage de 13,75 m². Eau chaude et chauffage individuel au gaz. Eau froide individuelle. Entretien parties communes et espaces verts communs, compris dans les provisions sur charges mensuelles et donnant lieu à une régularisation annuelle Disponible le premier décembre 2019

Annonce proposée par un agent commercial

TRAD_SIROCCO_Caracteristique Valeurs
Code postal 59480
Surface habitable (m²) 94,15 m²
Nombre de chambre(s) 3
Nombre de pièces 5
Meublé Non renseigné
Nombre de niveaux 1
TRAD_SIROCCO_Caracteristique Valeurs
Nb de salle de bains 1
Nb de salle d'eau 1
Cuisine Américaine
Type de cuisine Equipée
Mode de chauffage Gaz
Type de chauffage Autre
Format de chauffage AUTRE
Nombre de parking 2
Année de construction 2019
TRAD_SIROCCO_Caracteristique Valeurs
Dont état des lieux 130 €
Dépôt de garantie TTC 741 €
Charges locatives (provision donnant lieu à régularisation annuelle) 55 €
DPE GES
DPE ANCIENNE VERSION

* CC : Charges comprises

Nos outils

Imprimer
Ces biens peuvent aussi vous intéresser
Loué
Hénin-Beaumont (62110)

Plain pied individuel 3 ch jardin garage

Nous suivre sur