Lens (62300) LENS hyper centre ville immeuble de rapport
LENS hyper centre ville immeuble de rapport
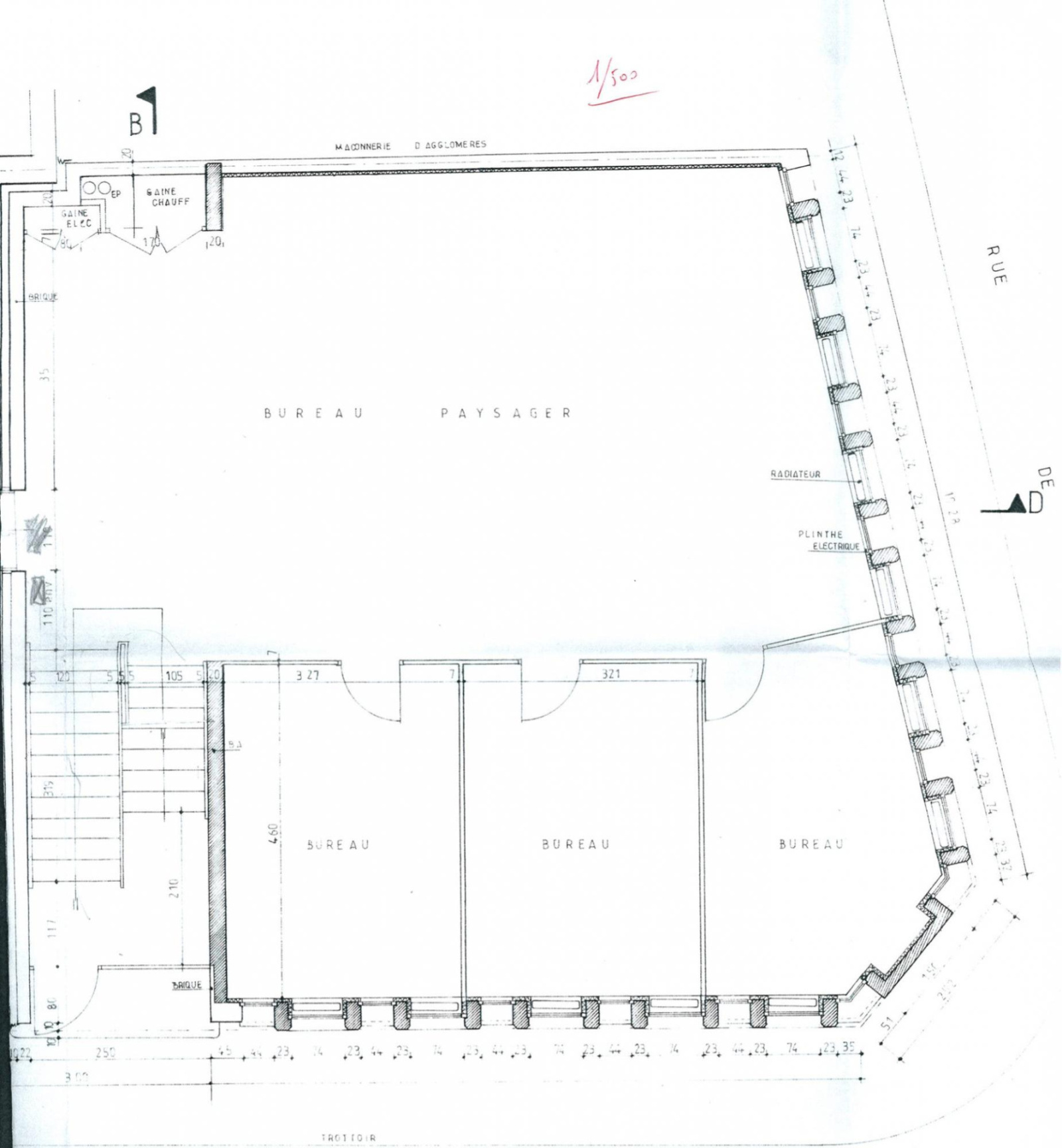
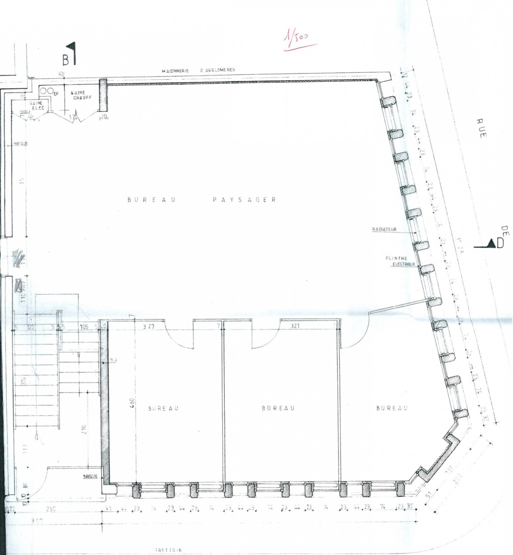
Immeuble de rapport en partie loué , idéalement à usage de bureaux. 2 plateaux (1 loué actuellement) + surface de stockage d'une surface total de 250 m' environ.
Sous-sol (loué) pour stockage (archivage) -
Rdc : sanitaires communs + pièce d'archivage (louée)
1er étage : plateau (loué)
2eme étage : plateau libre d'occupation
Loyers perçus actuellement : 19560€/an - possibiliité + 12000€ avec la location du dernier plateau
Annonce proposée par un agent commercial
Les informations recueillies sur ce formulaire sont enregistrées dans un fichier informatisé par La Boite Immo agissant comme Sous-traitant du traitement pour la gestion de la clientèle/prospects de l'Agence / du Réseau qui reste Responsable du Traitement de vos Données personnelles.
La base légale du traitement repose sur l'intérêt légitime de l'Agence / du Réseau.
Elles sont conservées jusqu'à demande de suppression et sont destinées à l'Agence / au Réseau.
Conformément à la loi « informatique et libertés », vous disposez des droits d’accès, de rectification, d’effacement, d’opposition, de limitation et de portabilité de vos données. Vous pouvez retirer votre consentement à tout moment en contactant directement l’Agence / Le Réseau.
Consultez le site https://cnil.fr/fr pour plus d’informations sur vos droits.
Si vous estimez, après avoir contacté l'Agence / le Réseau, que vos droits « Informatique et Libertés » ne sont pas respectés, vous pouvez adresser une réclamation à la CNIL.
Nous vous informons de l’existence de la liste d'opposition au démarchage téléphonique « Bloctel », sur laquelle vous pouvez vous inscrire ici : https://www.bloctel.gouv.fr
Dans le cadre de la protection des Données personnelles, nous vous invitons à ne pas inscrire de Données sensibles dans le champ de saisie libre.
Ce site est protégé par reCAPTCHA, les Politiques de Confidentialité et les Conditions d'Utilisation de Google s'appliquent.
Détails des diagnostics énergétiques
LENS hyper centre - véritable loft, 220m2 rénové en 2013
